PROPERTY SUMMARY
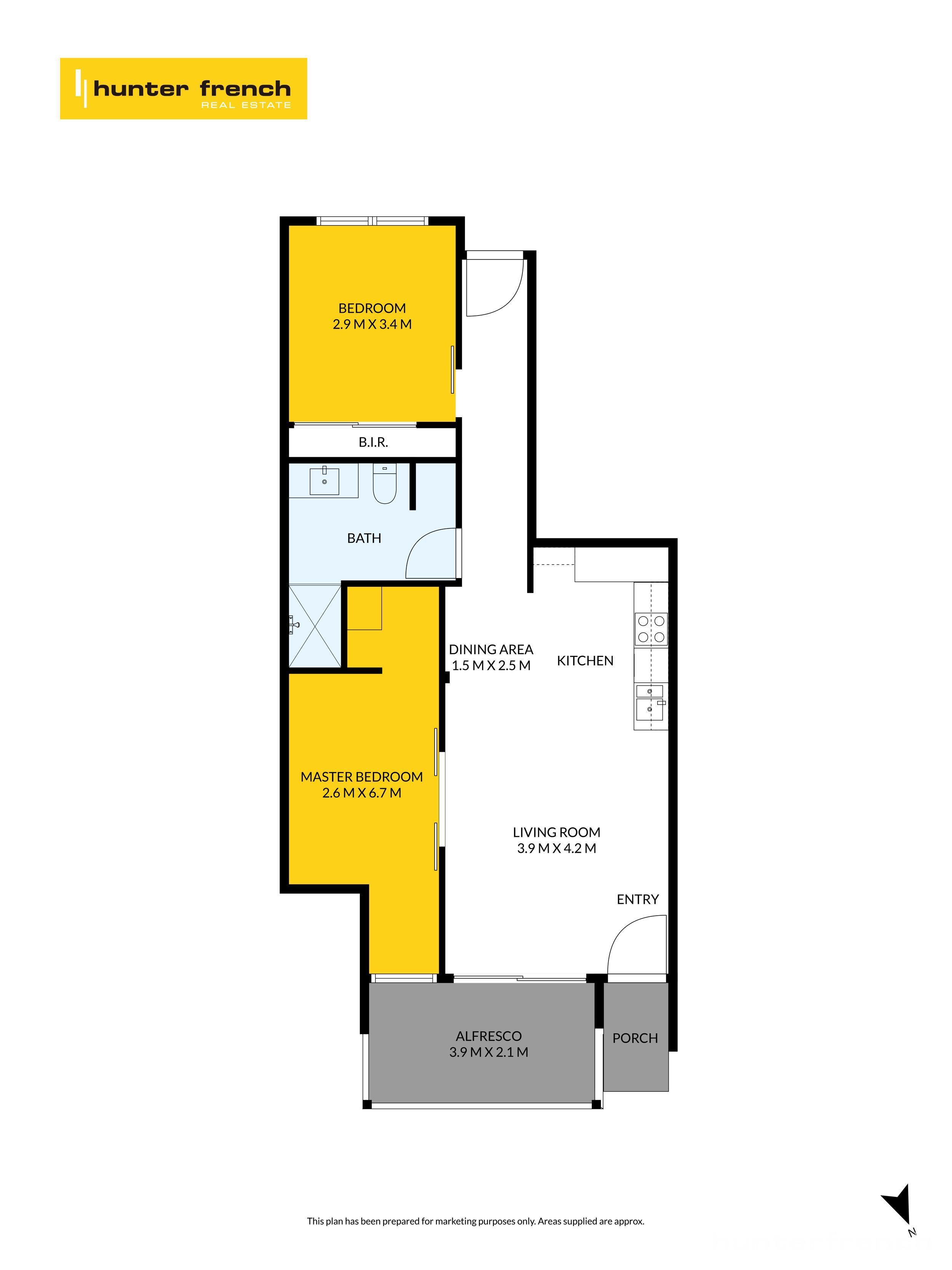
Beds: 2
Baths: 1
Car Park: 1
Property Description
This property is currently not available.
Perfect property to move into OR add to your rental portfolio. Freshly painted,
new carpets & downlights. Walking distance to Cafes, Restaurants,
supermarkets, train station & pubs. Everything is on your doorstep.
• Loacted on ground level with entrance from Ovens street.
• Comprising of 2 carpeted bedrooms with robes.
• Spacious living & kitchen area.
• Spacious bathroom with laundry facilities.
• Secure carpark on title.
• shared courtyard & garden areas.
• Heating, Cooling, storage box, elevator, intercom, downlights &
dishwasher.
• Front spacious undercover balcony.
• Contact Saade Ghazi for more information.















